U gebruikt een verouderde internetbrowser.
We raden u aan om de meest recente internetbrowser te installeren voor de beste weergave van deze website.
Een internetbrowser die up to date is, staat ook garant voor veilig surfen.

de Vang 43, 5571 RH Bergeijk
Vraagprijs: € 497.500 k.k.

Omschrijving

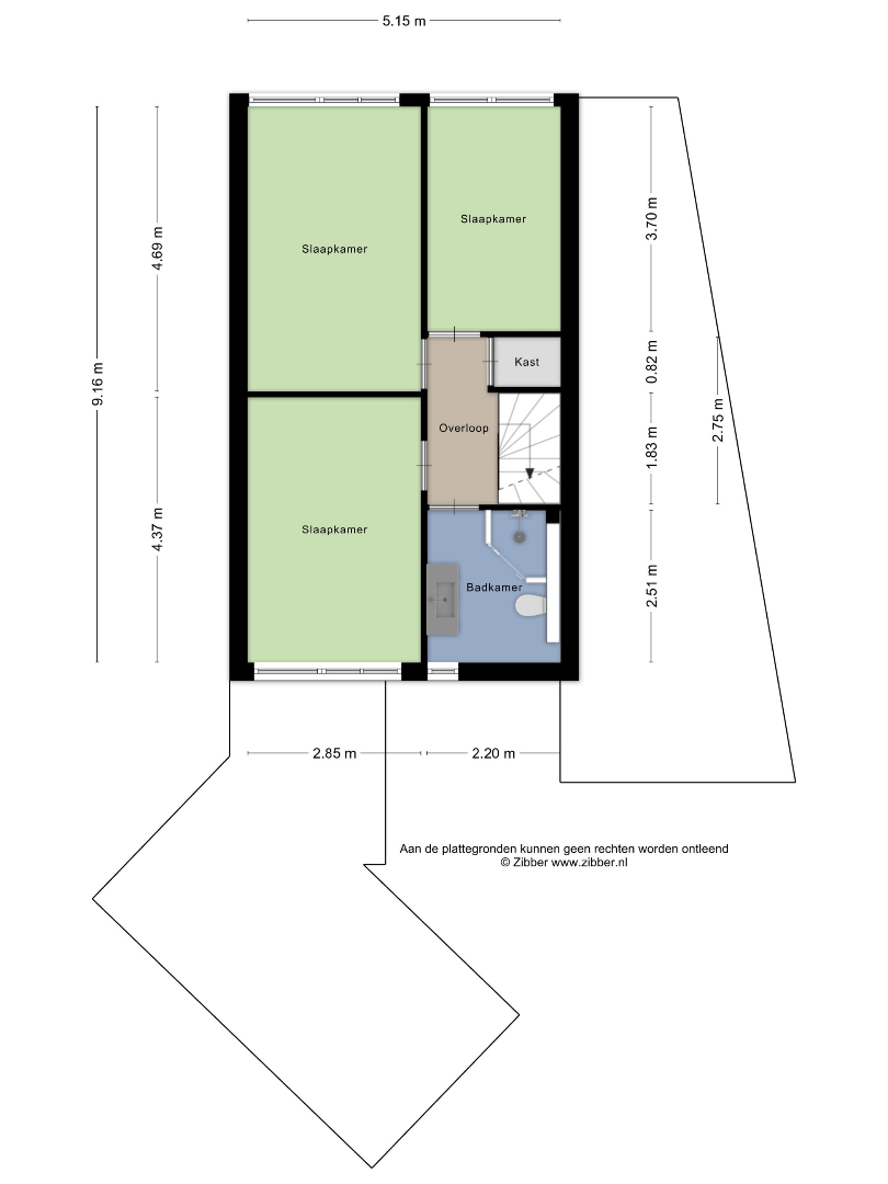
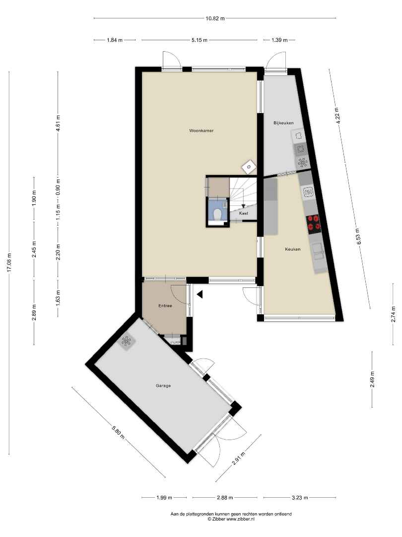
Ruime eengezinswoning met tuin, terras, garage en 4 slaapkamers in Bergeijk,

Deze prachtige eengezinswoning is gelegen in het pittoreske Bergeijk en heeft een ruime woonkamer met massief houten vloer en doorgang tot de moderne keuken eetgelegenheid. Ook beschikt de woning over een ruime tuin, een gezellig terras, een garage en maar liefst 4 slaapkamers. De woning is volledig gerenoveerd in 2000 en is daardoor van alle moderne gemakken voorzien.

Met een perceeloppervlakte van 243M2 en een bewoonbare oppervlakte van 172M2 biedt deze woning voldoende ruimte voor een gezin. Daarnaast beschikt de woning over een energielabel B, wat betekent dat de woning energiezuinig is en dus lagere energiekosten met zich meebrengt.

De tuin is gelegen op het westen, waardoor je heerlijk van de avondzon kunt genieten op het terras. Daarnaast is er ook nog een garage aanwezig, waar je bijvoorbeeld je auto of fietsen kunt stallen.

Voor gasten of extra voertuigen zijn er 2 parkeerplaatsen beschikbaar. De woning is dus ook perfect voor mensen die regelmatig bezoek ontvangen.

Kortom, deze woning in Bergeijk is een ideale plek voor een gezin dat op zoek is naar ruimte, comfort en een prachtige tuin. Met alle voorzieningen binnen handbereik en een goede oriëntatie van de tuin, is dit een heerlijke plek om thuis te komen.


Kenmerken

General

Adres:de Vang 43
Bergeijk
Vraagprijs:€ 497.500 k.k.
Type:Eengezinswoning
Beschikbaar vanaf:In overleg
Perceeloppervlakte:243 m²
Totale woonoppervlakte:172 m²
Type constructie:Traditioneel
Bouwjaar:1976
Renovatiejaar:2000
Inhoud:608 m³
Op verdieping:2
Externe Bergruimte :6 m²

Indeling

Kamers:6
Slaapkamers:4
Badkamers:Ja
WC:Ja
Woonkamer:Ja
Keuken:Ja
Terras:20 m²
Tuin:71 m²
Tuin oriëntatie:West
Tuin kwaliteit:Fraai aangelegd
Parking:2
Parking Types:Op eigen terrein

Comfort

Raamwerk:Hout
Dak:Zadeldak
Beglazing:Dubbel
Waterleiding:goed
Sanitair:goed
Elektriciteit:goed deels vernieuwd in 2024
Verwarming:CV-ketel
Verwarmd water:Combiketel
Isolatie:Dakisolatie, Muurisolatie, Vloerisolatie

Kadastrale gegevens

Kad. gemeente:Bergeijk
Oppervlakte:243 m²

Informatieplicht

Certificaat Nr.:669988005
Energielabel:B
Geldig tot:30-3-2036

Ligging

Neem vrijblijvend contact op

Interesse in meer informatie of een bezichtiging van de woning? Neem vrijblijvend contact met ons op voor meer informatie. 
Wanneer wij je aanvraag hebben ontvangen, nemen we contact met je op. 


U moet akkoord gaan met het privacybeleid van deze website
* Verplicht in te vullen
Niet gevonden wat je zocht? Schrijf je dan vrijblijvend in en blijf op de hoogte van ons recente aanbod.
Schrijf je in
Terug naar boven
Sluit menu FLOW Makelaars